茂陵凭吊:汉朝离我们有多远丨从长安到敦煌(1)

2025-05-26 08:18

作者 文博时空

作者 黄君度 诸君可知,司马迁如何写出“通古今之变”的不朽名篇《史记》?据他自己说,年少时遍游大江南北,调查古代遗迹和传说故事——用今天的话来讲就是实地考察,才能有对历史洞彻的了解。 2024 年 10 月,我参加了单位组织的西北考察之行。虽非司马迁式的周游历览,但在短短 8 天的行程里,乘火车穿过沙漠,坐飞机翻越雪山,漫步于汉代长城下,到访西安、宝鸡、兰州、敦煌、武威这五个丝绸之路上的重要城市,寻觅伟大的历史遗迹,在周晋汉唐的漫长时空里看见文明。“西北行记”系列是记录,也是一次邀请,欢迎诸君携诗酒书剑,随我开启这场穿越古今的壮游!

从狭小逼仄的空客 320 机舱出来,踏上西安咸阳国际机场外的关中大地,迎面就感受到她那股辽阔浑厚的力量。航站楼前是平坦的大广场,抬头望去,秋日的晴空澄蓝如洗,点缀着几片浮云。汉朝是一个那么遥远的朝代,以前只通过书本上和我所研究的汉简了解她,今天要寻访一位最伟大的汉朝皇帝的陵墓,经历了两千年悠悠岁月,我还能看到些什么?

一阵电话铃声把心思拉回到当下的行程,是包车司机王师傅打来的。这是位膀大腰圆、方脸平头的关中汉子,容易让人联想起那句“关西出将”的古谚,说起话来却很和气。“师傅,开到茂陵远吗?”“不远, 40 多公里,很快就到了。”王师傅看了一眼导航,兴致勃勃地问道,“茂陵是汉武帝那个茂陵不?我还没去过哩!”我说是,自己研究汉代历史,这次跟单位出来考察,同大部队约在杨陵南站汇合,顺道包车去趟茂陵,感受一下历史的气息。

车从外环高速拐下来,转眼就开上一条长约 2 公里的县道,由北到南,笔直地指向一座近 50 米高的巨大封土丘。我告诉王师傅,现在走的这条路就是当年的“司马门道”,相当于北京故宫的神武门。

诸君可知,司马迁如何写出“通古今之变”的不朽名篇《史记》?据他自己说,年少时遍游大江南北,调查古代遗迹和传说故事——用今天的话来讲就是实地考察,才能有对历史洞彻的了解。2024年10月,我参加了单位组织的西北考察之行。虽非司马迁式的周游历览,但在短短8天的行程里,乘火车穿过沙漠,坐飞机翻越雪山,漫步于汉代长城下,到访西安、宝鸡、兰州、敦煌、武威这五个丝绸之路上的重要城市,寻觅伟大的历史遗迹,在周晋汉唐的漫长时空里看见文明。“西北行记”系列是记录,也是一次邀请,欢迎诸君携诗酒书剑,随我开启这场穿越古今的壮游!

2025-1-1620.13的影像.jpg

茂陵卫星地图

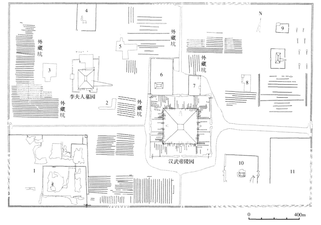
按照汉代帝陵制度,“汉天子即位一年而为陵,天下贡赋三分之,一供宗庙,一供宾客,一充山陵”,茂陵从汉武帝即位之初就开始建造,每年全国税赋的三分之一都要投入这个工程,经过五十多年的营建,形成了一组庞大的建筑复合体。茂陵陵区由茂陵陵园、茂陵邑、陪葬墓区及修陵人墓地四大部分组成,分布范围东西约 9.5 公里,南北约 7 公里。

IMG_20250114_000856.jpg茂陵陵园

茂陵陵园位于陵区中央,规模宏大、布局严谨,且有完备的道路系统和内外两重墙垣,以及“多处面积较大的池沼,池沼之间有水渠相连”,可能是用于“驰逐走马”的园林,充分展现了汉帝国鼎盛时期的雄厚国力。整个茂陵和周边设施,相当于是对汉武帝生前居所的模拟,在地下世界中,随葬的大臣和嫔妃依旧陪伴在他身旁,无数可歌可泣的历史故事也曾围绕这些建筑缓缓展开。

IMG_20250114_000856.jpg汉武帝陵

汉武帝陵封土位于陵园中心,用五花土夯筑而成,作覆斗状,周围呈放射状分布着数量众多的外藏坑(用于埋藏器物的土坑),在西侧还有李夫人的墓园。汉武帝一生有过“金屋藏娇”的陈阿娇、宠盛一时的卫子夫两位皇后,但他最深爱者还是那位妙丽善舞的李夫人,其兄李延年曾作歌颂扬她的美貌:“北方有佳人,绝世而独立。一顾倾人城,再顾倾人国。宁不知倾城与倾国,佳人难再得!”

IMG_3882.jpg

李夫人画像(选自清代刻本《百美新咏图传》)

史书记载,因李夫人早逝,汉武帝相思悲感至极,竟请了一位方士做法,招致爱人的魂魄。但他只能隔着帷帐遥遥相望,为作诗曰:“是邪,非邪?立而望之,偏何姗姗其来迟!”后来卫子夫受巫蛊之乱牵连被废,武帝不久驾崩,受遗诏辅政的大将军霍光“以李夫人配食,追上尊号曰孝武皇后”,因此今天汉武帝陵西侧陪葬的不是陈皇后、卫皇后,而是李夫人的墓园。

汉武帝茂陵考古调查、勘探简报_张明惠_02(1).jpg茂陵陵园平面布局图(摘自《汉武帝茂陵考古调查、勘探简报》)

在茂陵陵园周围,分布着大片陪葬墓,墓主人多半是生前在朝堂上举足轻重的大臣和皇亲国戚,死后依然陪伴在皇帝身边。其中最有名的当属葬在茂陵东侧的卫青、霍去病、金日磾、霍光等人,他们的墓封土高大,宛如威风凛凛的战将,守卫着茂陵,这也与他们生前的地位和功绩相配。

如今,霍去病墓位于茂陵封土东约1公里处,被包含在茂陵博物馆内。这座博物馆虽然是国家二级博物馆,但藏品丰富,有总计5244件文物,其中霍去病墓前的16件西汉大型石雕、茂陵陪葬墓和外藏坑出土的珍贵文物是其特色展品。由于时间有限,所以我决定先参观博物馆的展品,再折回来看茂陵陵园。

天马来西极

车在茂陵博物馆门口停稳后,从检票口进去是一个十分宽阔的广场,沿中轴线向北望去,能看到松柏环绕的古冢,那里想必就是“为冢象祁连山”的霍去病墓了。穿过广场走进一处院落,中间是鱼池假山,两边对称分布着东、西两个展厅。

IMG_20250114_000634.jpg茂陵博物馆

东展厅的文物琳琅满目,一张西汉弩最先引起我的注意,因为通常各大博物馆只会展出各式各样的弩机(安装在弩臂后部的金属构件,用以扣弦、发射,类似枪械的扳机),这张弩显然是复制品,但它又和其他汉代兵器一起放在玻璃柜里,不免让人疑惑。展牌介绍,这是 1980 年霍去病墓西约 200 米出土的“西汉鎏金弩机”。贴在玻璃柜上端详了好一会儿,我才明白原来这枚弩机竟然就嵌在仿造的弩臂上!修复人员特意复原了一张弩,把鎏金弩机嵌进相应位置,使这件神兵利器重获当年的风采,这一用心之举轻易就拉近了观众与历史的距离。

_cgi-bin_mmwebwx-bin_webwxgetmsgimg__&MsgID=7571115323713179670&skey=@crypt_50cce117_ce7dc3955ac381e39484d088c23fad54&mmweb_appid=wx_webfilehelper.jpeg西汉鎏金弩机

称这张弩为“神兵利器”一点都不过分,西汉名臣晁错曾比较汉朝与匈奴的战略形势,说“劲弩长戟,射疏及远,则匈奴之弓弗能格也”,认为弩是汉朝军队五大“长技”之一。根据未央宫骨签、汉简等出土文献记载,汉弩的拉力通常在 3~6 石(折合 180~300 磅),射程可达 300~400 步( 414~552 米),威力巨大。不光如此,汉代弩机上还有带刻度的望山(古代弩机上的简易瞄准器,战国弩机的望山尚无刻度,西汉时出现了带刻度的望山),士兵按照一定的方法瞄准,就可以实现惊人的射击命中率,《后汉书》曾提到一位神射手——陈王刘宠甚至能“十发十中,中皆同处”。正是依靠这样的高科技武器,汉武帝的将士们才能在对匈奴的战争中屡次取胜,最终一雪汉高祖刘邦平城之围的前耻。我不禁遐想,这件弩机通体鎏金,与一般的铜弩机相比,更显华贵,它出土在骠骑将军、冠军侯霍去病的墓旁,说不定就是这位战功彪炳的名将生前所用之物,见证过他那段金戈铁马的岁月。

转过一排是汉代钱币和陶器,在旁边的展柜里有一件活泼小巧的绿釉胡人骑马俑,通体不过 10 多厘米,外表是墨绿色的釉面,只有四只马蹄没有上釉,显出白色的瓷恰似白色毛发,活脱脱是一匹青骢骏马。那胡人头戴毡帽,两手抓住缰绳,表情严肃。马儿好像也感觉到主人的庄重感,所以马首低昂,藏起了平时的顽皮劲儿,却忍不住张嘴吐舌,好奇地瞪大了眼睛,十分可爱。

_cgi-bin_mmwebwx-bin_webwxgetmsgimg__&MsgID=4520157547030665970&skey=@crypt_50cce117_ce7dc3955ac381e39484d088c23fad54&mmweb_appid=wx_webfilehelper.jpeg绿釉胡人骑马俑

汉墓之中出现胡人骑马俑并不奇怪,汉朝和匈奴之间的“战争与和平”故事加速了民族间的交流融合,一位名叫金日磾(jīn mì dī)的匈奴王子在汉朝做官,甚至成了汉武帝的托孤大臣。他本是匈奴休屠王太子,年少时随父入汉,其父休屠王因中途反悔被昆邪王所杀,金日磾也沦为了养马的官奴。一次,武帝在宴会上想要检阅他的骏马,向嫔妃们炫耀一番。牵马的小伙子们个个都偷看殿上的后宫佳丽,只有金日磾目不斜视。他身长八尺二寸,容貌庄严,养的马又很肥壮,因此得到武帝赏识,被提拔为亲近侍从。后来曾活捉想要谋害武帝的刺客,立下大功,所以晚年的汉武帝才放心托孤于这位忠厚谨严的外族老臣。因此,金日磾虽然不像卫青、霍去病那样战功赫赫,依然在茂陵东侧占据了一块墓地,享有随葬天子近侧的殊荣。倘若回到那些侍从武帝身边的日子里,他是否就像这尊胡人骑马俑一般,挺胸向前、神色威严呢?

IMG_20250114_000806.jpg

金日磾墓

红日西斜,柔和余晖从出口那扇刷红漆的门洒进展厅,一尊“金马”就在这样的光影中跃入眼帘。它昂首翘尾,筋骨矫健,体态不凡。四蹄安稳着地,马嘴微张,双眸正视前方,倒显出一种随时都可能腾云而起的架势来。我在另一篇文章里写过唐代的马(链接:因为它,茅屋为秋风所破的杜甫重露欢颜丨新知),在人们的印象里,名马应该是韩干笔下那种肥壮的形象,实际上,古人追捧的千里马应该是“胡马大宛名,锋棱瘦骨成。竹批双耳峻,风入四蹄轻。”古代有一种专门鉴别马好坏的技术叫“相马法”,通过长期的观察和经验总结,古人认为马身上有若干特征可说明其潜质,比如“耳欲得小而促,状如斩竹筒”就是好马。这尊鎏金铜马鼻孔硕大,耳朵竖起像圆圆的竹筒,眼眶棱角挺拔,真是一匹符合相马之法的名马!贴近些看,它脖颈修长,胸肌饱满,颈上刻有纤细的鬣毛,到前额还攒成一簇高耸的“发髻”,好似龙角一般精神抖擞。

_cgi-bin_mmwebwx-bin_webwxgetmsgimg__&MsgID=2734795509418006249&skey=@crypt_50cce117_ce7dc3955ac381e39484d088c23fad54&mmweb_appid=wx_webfilehelper.jpeg鎏金铜马

这样一尊名马模型,是怎么来到茂陵博物馆的?它又和汉武帝有什么关系? 1981 年 5 月,陕西省兴平县西吴公村豆马大队的社员在平整田地时,一位老农突然挖到了地下一个坚硬的物品,经过众人刨挖,一尊金光闪闪的马匹重新呈现在世人眼前。当地考古队在此进行了抢救性发掘,总共出土 230 多件器物,包括著名的鎏金银竹节铜薰炉和这件鎏金铜马。

_cgi-bin_mmwebwx-bin_webwxgetmsgimg__&MsgID=892187787392242796&skey=@crypt_50cce117_ce7dc3955ac381e39484d088c23fad54&mmweb_appid=wx_webfilehelper.jpeg鎏金铜马出土现场照片

其中很多文物上有“阳信家”铭文,此处应该就是阳信公主墓的从葬坑。阳信公主是汉武帝的姐姐,大将军卫青之妻。这尊铜马高 62 厘米,长 76 厘米,重达 26 千克,很可能是一件“铜马法”(名马模型)。古人因为千里马难得,要让大家随时都能鉴别名马,最好的教学办法就是按照相马法铸造一件模型,这样无论什么样的真马来了都可按标准定级。汉武帝时,有位相马大师东门京就进贡了这样一件“铜马法”,武帝特意把它安置在皇宫门外,还因此把那扇门改名为“金马门”。

WechatIMG147.jpg茂陵丛葬坑发掘现场全景

_cgi-bin_mmwebwx-bin_webwxgetmsgimg__&MsgID=7520084569715666059&skey=@crypt_50cce117_bbed8ece74284355edbede178ca16d12&mmweb_appid=wx_webfilehelper.jpeg阳信公主墓从葬坑的铜器和鎏金银竹节铜熏炉

_cgi-bin_mmwebwx-bin_webwxgetmsgimg__&MsgID=9165075484902577996&skey=@crypt_50cce117_bbed8ece74284355edbede178ca16d12&mmweb_appid=wx_webfilehelper.jpeg阳信公主墓从葬坑出土青铜器  

雄才大略的汉武帝刘彻,可能是历史上最爱马的皇帝之一,甚至为了大宛国的名马龙颜震怒,发兵绝域。大宛是当时中亚地区的一个富饶国度,《史记》说其地“多善马,马汗血,其先天马子也”。汉武帝听说大宛出产好马,于太初元年(前104年)派使臣携带千金及一匹黄金铸成的金马去换取,结果双方发生冲突,使臣被杀,财物尽数遭到掠夺。武帝大怒,拜他的小舅子(李夫人的另一个兄弟)李广利为将,约定打到大宛那座藏匿名马的贰师城,所以封李广利为“贰师将军”。数万汉军跋涉万里,历尽艰险,最终于太初四年(前 101 年)攻入大宛王都,与大宛人订立城下之盟,获得了数十匹名马和三千普通马匹的战利品。其中有一匹名为“蒲梢”的千里马,最得汉武帝欢心,享受了和宠妃李夫人同等的待遇——汉武帝亲自给它作了一首《西极天马歌》,要求在宗庙中演奏,歌曰:

天马来兮从西极,经万里兮归有德。承灵威兮降外国,涉流沙兮四夷服。

这尊鎏金铜马的原型,或许便曾跨越遥远的丝绸之路,进入阳信公主的皇家生活。它无数次肃穆地站立在华丽宫殿前,等待下一次与龙为友的飞腾。现在它穿越了漫长的时空,鲜活地重现世间,让我们得以体验美哉泱泱的汉朝风华。这难道就是古老文明的具象化价值吗?我还没有找到确切答案。

巧遇法国考察团

参观完两个展厅,我正准备再去看看鎏金铜马,这时一群西装革履的人走进来,中间簇拥着两位外国友人,挡住了我的去路。一位头发花白但精神矍铄的老先生在给他们讲解,旁边一位年轻人用法语进行同声传译。

我听着翻译,发现她对一些历史专有名词不太熟悉,讲解时常停顿。我想,这么灿烂的中国历史文化应该让外国友人更好地了解,而且我学了两年多法语,也想借此机会锻炼一下。于是我鼓起勇气,向一位看起来像是领导的白西装女士说明了我的想法,她欣然同意,并让工作人员给我一幅耳机和麦克风。我戴上设备,向两位法国友人打招呼,他们一位是金发微胖、面容和蔼的中年女士,一位是身材高大、戴黑框眼镜的男士,后来知道他们分别是法国某市的副市长和某艺术学院的副院长,这次是带领法国友好代表团来西安访问。我告诉他们自己是研究汉代历史的游客,很高兴今天能协助他们翻译和讲解。在市长女士鼓励的目光下,我渐渐进入状态,开始跟着老馆长介绍展柜里的陶俑。

_cgi-bin_mmwebwx-bin_webwxgetmsgimg__&MsgID=2840070148894583794&skey=@crypt_50cce117_ce7dc3955ac381e39484d088c23fad54&mmweb_appid=wx_webfilehelper.jpeg塑衣式彩绘男立俑

随葬各式陶俑是汉代流行的一种风俗,其中那些逼真的人俑象征着在地下世界继续侍奉主人的男女仆役,他们拱手立侍,跪坐奏乐,展现了一幅多姿多彩的汉代生活图景。他们面部表情丰富,有人俯首低眉,有人凝视远方,流露出那个时代特有的富足安乐。老馆长请两位法国友人注意他们的衣着,这些长袍在汉代叫“深衣”,是汉代最通行的一种服饰,其特点在于上衣和下裳分别裁剪后缝为一体,保持着“褒衣博带”的风格。儒家经典《礼记》专门有一篇《深衣》,讲这种服饰的制作方法和文化意义,据说它袖口宽大,象征天道圆融;领口直角相交,意指地道方正;背后一条直缝贯通上下,寓意人道正直;裁剪用布十二幅,对应一年十二月。身穿深衣的古代中国人,时时刻刻都在实践天人合一、公平正直、包容万物的东方美德。

_cgi-bin_mmwebwx-bin_webwxgetmsgimg__&MsgID=974044122790374294&skey=@crypt_50cce117_ce7dc3955ac381e39484d088c23fad54&mmweb_appid=wx_webfilehelper.jpeg男俑面部细节

移步前行,雍容大气的四神纹玉铺首吸引了所有人的目光。“它太美了!是中国玉吧?”市长女士感叹道。老馆长给出了肯定的答复:它是由一整块蓝田玉雕刻而成,这种名玉产自西安南边的蓝田山。古人利用蓝田玉来雕刻精美玉器的历史至少有 5000 多年,而这件玉铺首就是其中最巧夺天工的一件。

_cgi-bin_mmwebwx-bin_webwxgetmsgimg__&MsgID=9023098062015822380&skey=@crypt_50cce117_ce7dc3955ac381e39484d088c23fad54&mmweb_appid=wx_webfilehelper.jpeg四神纹玉铺首, 1975 年在茂陵陵园附近出土,很可能是从门扉脱落下来的。

玉铺首图案整体是一怒目卷鼻、昂首呲牙的神兽形象,细看之下兽面两侧还透雕青龙、白虎、朱雀、玄武四神纹,颀长的龙、虎咬住神兽头冠,灵动的朱鸟、玄龟和青蛇游走在额颊之上,布局庄重华丽,极富想象力和巧思。院长先生俯下身子,好奇地打量那些环绕在兽面上的小动物。怎么给他们讲解“四神”的寓意?四神代表四方,各自代表五行中的木、金、火、水。我便从五行说谈起,告诉外国友人这四种动物分别是龙、老虎、神鸟以及龟蛇合体的灵兽,因为它们各自是四个方位的守护神,龙代表五行中的木,虎代表金,名叫“朱雀”的神鸟代表火,名为“玄武”的龟蛇代表水,所以人们将其颜色也相应描述为青、白、朱(红色)、玄(黑色)。四神纹样在汉代得到广泛运用,从瓦当、空心砖、墓室到铜镜,汉代人在他们生活中绘满了这些象征天空四方的神兽。

走出户外,老馆长带大家穿过长廊,来到安放鼎鼎大名的“马踏匈奴”石雕的小亭间。这尊雕塑是我国第一批禁止出境文物之一,它和其他伏虎、跃马、野猪、吃羊怪兽、抱熊力士、卧象等13件石雕是一组,原先陈列在霍去病墓前,专家推测其功能是霍去病墓园园林景观的装饰。

_cgi-bin_mmwebwx-bin_webwxgetmsgimg__&MsgID=6722435484257401645&skey=@crypt_50cce117_bbed8ece74284355edbede178ca16d12&mmweb_appid=wx_webfilehelper.jpeg马踏匈奴石雕

战马从容不迫,匈奴士兵拼死挣扎,而马上的战士早已不见踪影。在马踏匈奴石雕前,霍去病的故事令大家心驰神往。北方的游牧民族匈奴一直是汉朝的心腹大患,汉武帝即位以后,发动了将匈奴人赶回沙漠的惨烈战争。大将军卫青率军寻求与匈奴单于决战,他的外甥霍去病虽只有十八岁,也加入了这场战争。像法国的拿破仑一样,他是个掌握了战争艺术的天才,曾指挥八百骑兵奇袭敌军,多次击败数倍于己的匈奴军队,完成了在匈奴腹地的狼居胥山祭祀上天的壮举。可惜他年仅二十四岁就英年早逝,汉武帝将他的陵墓修建成祁连山的形状,用来纪念这位将军的第一次伟大胜利。这件石雕就是那个时候安放在他墓前的,它用坚硬的花岗岩雕成,所以经过两千多年的风雨侵蚀,依旧完好无损。

提取自谢阁兰的中国考古摄影集.BY Victor Segalen.1909.1914.1917年.png

法国汉学家谢阁兰 20 世纪初拍摄的霍去病墓

“这相当难得!人们是怎么保护这个雕塑的?”院长先生忽然问。

老馆长语重心长地讲起了清代学者毕沅的故事。在陕西有很多像茂陵这样古代遗迹,有的早已荒废泯灭。距今 200 多年前的清朝乾隆年间,刚中状元不久的毕沅出任陕西巡抚。他非常重视文化教育,自己就是位大学问家,对此感到十分痛心。为保护包括茂陵在内的陕西古代帝陵,他颁布了详细的实施办法,要求划定文物保护范围,立界石以防侵占,设专人巡护管理,以期达到古迹不被湮没的目的。茂陵这些重要文物能够留存至今,应当铭记他的功劳。

_cgi-bin_mmwebwx-bin_webwxgetmsgimg__&MsgID=7231135095229080637&skey=@crypt_50cce117_bbed8ece74284355edbede178ca16d12&mmweb_appid=wx_webfilehelper.jpeg毕沅所立“汉骠骑将军大司马冠军侯霍公去病墓”碑

“茂陵文物保护工作,离不开每一位像毕沅这样热爱古代文化的人的努力。我们今天在这里相会,还有一个缘分,”老馆长话音一转,接着说,“我们博物馆从 2017 年起和法国遗产科学基金会达成合作,两国的专家团队一起来对茂陵石刻开展保护修复。法国专家给我们提了非常好的建议,我相信这项工作以后会更加完善。大家看到的这尊雕塑,就是中法文明交流互鉴的最好见证!”

在场的外国友人和中国观众,很有默契地为老馆长的一席话鼓起了掌。雷动的掌声之中,我再度思考起中华文明的价值究竟何在?它应该既蕴藏在这些古老的文物本身,又落在我们每个人心里。“我们”,是复数的所指。自古生活在这片土地上的人们,还有那些已经到达和即将前来的人们,无论国籍和种族,都可以自由地欣赏这些具象的文物和其背后的抽象精神,正是文化传承的意义。开放包容的中华文明,是属于我们所有人的文明。

当我与法国友人分享这些历史时,他们眼中的惊叹和对中国文化的浓厚兴趣,也让我明白,汉朝的文化魅力跨越了国界,依然能够打动人心。在这个过程中,我与汉朝的距离在不断拉近,它不再是书本上遥远的记载,而是变得鲜活而真实。

茂陵秋风

参观刚刚结束,几个观众就走过来打听我的来历,毕竟这个突然出现的小伙刚刚用法语做了全程导览,讲的还是遥远的汉朝故事,实在让人好奇。可是刚刚我那股勇气和“自来熟”气质现在已消失得无影无踪。是时候向新朋友们告别,继续踏上我的旅途了。

在大门附近我找到市长女士和院长先生,表达了我对今日萍水相逢的难忘之情,希望有机会继续给法国朋友们介绍中国文化。她们带着法国人特有的热烈情感告诉我:“你的讲解太棒了,非常感谢你!”市长女士还向我竖起大拇指。我报以微笑,答道:“谢谢,现在我要去给霍将军念几首诗了,期待与你们下次再会。”

穿过院落中间的水池,来到霍去病墓冢的祁连山麓。我从背包里拿出一张打印稿,上面有几首唐诗,这是从我最喜爱的美国旅行家比尔·波特那里学到的做法——在心仪的历史人物墓前,为其诵读纪念之诗。中庭喷泉哗啦啦的水流声,将外界的喧嚣分隔开去。在葱郁的柏树下,我开始朗诵,声音在山岩与树荫间回荡,诉说着霍去病如流星般短暂却璀璨的一生。

(插入朗诵音频—霍去病)

居延城外猎天骄,白草连山野火烧。

暮云空碛时驱马,秋日平原好射雕。

护羌校尉朝乘障,破虏将军夜渡辽。

玉靶角弓珠勒马,汉家将赐霍嫖姚。

 ——唐·王维《出塞》

汉家战士三十万,将军谁者霍嫖姚。

流星白羽腰间插,剑花秋莲光出匣。

——唐·李白《胡无人行》

悲笳数声动,壮士惨不骄。

借问大将谁,恐是霍嫖姚。

——唐·杜甫《后出塞》

从毕沅题写的霍去病墓碑处向左转,有一道狭窄的阶梯,顺着它可以登上祁连山巅,那里有一座览胜亭。凭栏远眺,整个茂陵陵区尽收眼底,甚至能望见远方薄雾笼罩下的西安城。这位军事天才般的年轻人并不孤寂,其左侧是引领他踏上征程的舅舅卫青之墓,右侧安息着那位来自他一生与之征战民族的王子金日磾。静谧的山脚下这片沃土,是他生长与奋战守护之地。

_cgi-bin_mmwebwx-bin_webwxgetmsgimg__&MsgID=429288435311441141&skey=@crypt_50cce117_bbed8ece74284355edbede178ca16d12&mmweb_appid=wx_webfilehelper.jpeg在览胜亭远眺茂陵

不远处,那座更为高大的山丘便是汉武帝的陵寝。我怅望良久,天色渐渐暗沉,随即下山,前往茂陵。途中经过长长的回廊,此时整个茂陵博物馆已空无一人。回廊里陈列着若干巨石,定睛细看,正是霍去病墓园里的另外 12 件石雕。清冷的灯光映照在灰色花岗岩上,投下深深浅浅的暗影。这些动物造型多依循石头原本的形态雕琢而成,这种造像被称作“循石造像”,即在大体不做改动的基础上稍加修饰,看似粗糙,实则生动传神,彰显出汉代质朴雄浑的艺术风格。其中有一尊伏虎像,瞪着铜铃般的大眼眈眈凝视,全身俯伏在地,耳朵紧贴脑后,似乎随时可能跃起,搏杀尚未觉察到危险的猎物。好不畏人!

_cgi-bin_mmwebwx-bin_webwxgetmsgimg__&MsgID=1436373610048663609&skey=@crypt_50cce117_bbed8ece74284355edbede178ca16d12&mmweb_appid=wx_webfilehelper.jpeg伏虎循石造像

赶到茂陵陵园时已经闭园了,透过伸缩门可以看见后面的封土山丘,却不能进去凭吊,我心情有些失落。司机王师傅见我神色有些沮丧,便指了指旁边的门卫室,那里透出灯光,我马上会意,走到窗前轻轻敲了两下玻璃。一位面色黧黑、头发斑白的老者出现了,我说自己专程从上海飞过来,想要祭拜汉武帝,如果看不到就太可惜了,能不能开开门让我进去看一眼?老者露出了淳朴而略带同情的笑,按下遥控器,向我挥挥手放行。

_cgi-bin_mmwebwx-bin_webwxgetmsgimg__&MsgID=3845923916516850986&skey=@crypt_50cce117_bbed8ece74284355edbede178ca16d12&mmweb_appid=wx_webfilehelper.jpeg茂陵封土与古碑

茂陵封土前立着一块巨大的古碑,上面有毕沅隶书“汉孝武帝茂陵”几个苍劲的大字。

image.png 

平复了片刻因跑动而剧烈的呼吸,内心渐渐沉静,归巢的寒鸦发出呱呱叫声,更显出此时的寂寂萧瑟。折叠的纸张慢慢打开,第一首诗的字句在秋日夕阳中跳跃起来,散落于长满枯黄草梗的夯土台基上,发出铿锵有力的金石之声,这是汉武帝所作《秋风辞》:“秋风起兮白云飞,草木黄落兮雁南归。兰有秀兮菊有芳,怀佳人兮不能忘。泛楼船兮济汾河,横中流兮扬素波。箫鼓鸣兮发棹歌,欢乐极兮哀情多。少壮几时兮奈老何!”

“太一贡兮天马下,沾赤汗兮沫流赭。骋容与兮跇万里,今安匹兮龙为友。”《天马歌》是汉武帝献给他骏马朋友们的作品,那匹鎏金铜马的原型想必不是凡马,而是太一之神赐给人间的天马。

《柏梁诗》则是壮盛之年的汉武帝在宴席上命群臣每人一句,共同歌咏大汉盛德的诗歌。“日月星辰和四时,骖驾驷马从梁来。郡国士马羽林材,总领天下诚难治。和抚四夷不易哉,刀笔之吏臣执之。撞钟伐鼓声中诗,宗室广大日益滋。……”

贤能的宰相,执法铁面无私的廷尉,主管汉室宗亲的宗正,治理京畿民政的京兆尹等等,纷纷陈说功绩、举杯祝寿,济济一堂,可谓是君臣相知的难得盛会。

宴席散去,白驹过隙,人生百年转瞬即过,只留下荒冢秋风供后人凭吊。他们的故事化作不朽的诗句,那些歌咏汉武帝的诗人们自己也成了历史的过客,汉朝离我们大概就是这么遥远吧?对“汉朝离我们有多远”这个问题,我心里产生了一丝犹疑。

(插入朗诵音频—汉武帝)

秋风起兮白云飞,草木黄落兮雁南归。

兰有秀兮菊有芳,怀佳人兮不能忘。

泛楼船兮济汾河,横中流兮扬素波。

箫鼓鸣兮发棹歌,欢乐极兮哀情多。

少壮几时兮奈老何!

——西汉·刘彻《秋风辞》

茂陵刘郎秋风客,夜闻马嘶晓无迹。

——唐·李贺《金铜仙人辞汉歌》

汉家天马出蒲梢,苜蓿榴花遍近郊。

——唐·李商隐《茂陵》

茂陵秋风客,劝尔麾一杯。

帝乡不可期,楚些招归来。

—— 北宋·苏轼《过莱州雪后望三山》

走回大门口,那位老者正笑吟吟地站在门卫室里,我向他道过谢,顺便打听他贵姓。老者用浓重的关中口音说:“不用谢!额姓董,草字头的‘董’。”来不及坐下跟他细话家谱,我上了王师傅已经等在外边的车。

姓董,会不会是董仲舒的后人?我跟王师傅讲了这个猜测。一路上少言寡语的王师傅忽然打开了话匣子,从汉武帝路过董仲舒墓前下马致敬,说到君臣初见时的“天人三策”,汽车继续在关中平原的秋夜里穿行,王师傅已经讲到了李广利出征大宛。我惊异于他丰富的历史知识,有些细节讲得竟然与史书不差分毫!他说自己以前没读过什么书,这两年开始用“樊登读书”听历史故事,有位复旦教授讲的汉朝历史,他听了不下十遍,所以记得比较牢。说起西安的汉代遗迹,他建议以后一定要去汉景帝阳陵,因为那是唯一可以进到地宫参观的汉代皇陵。90年代考古队发掘了几个陪葬坑,出土不少重要文物,对汉代历史感兴趣应该去参观。闲聊之中,他那高亢的语调流露出对中国古代文明的热爱,以及身为陕西人的历史自豪。

车停到杨凌南站外,我跟王师傅约定下次来参观继续包他的车。这位淳朴的关中汉子笑了笑,“只要我那时候还干得动,一定来接!中国文化太宝贵了,请你们好好研究这些历史。”我们握手道别,他那只有力的大手传递着重重的嘱托。

IMG_20250114_000920.jpg茂陵远景

汉朝离我们真的有那么远吗?今天所见到的历史遗迹和生活在这种文化氛围中的人们,使我相信汉朝离我们并不遥远。这个“远”并非空间的绵长,也不是时间的久远,而是人的感受与历史之间的距离。对这里的人们来说,茂陵就处在他们的田垅近旁,保护文物的观念根植于村社传统之中,只要父老相传的故事还在被讲述着,那个辉煌灿烂的汉朝就从不曾远去。在渭水秋风中,我找到了答案:汉朝离我们的距离,取决于我们对历史的态度,以及由此建立的联结。只要我们愿意去探寻、去感受,它就会在我们身边,与我们的生活紧密相连。


图片 | 黄君度 武禹嘉

排版 | 黄思琦

设计 | 尹莉莎

免责声明:本文观点仅代表作者本人,供参考、交流,不构成任何建议。